Imagine 24

Teren 830 mp Sector 5 | Autorizație hală P+1 | Curent trifazic | Investiție

ID: P247833 Bucuresti, Magurele 30
125.400€ 132.000€
Descriere
ID 247833
Art Consul Imob vă propune spre vânzare un teren intravilan cu suprafața de 830 mp, situat în București – Sector 5, într-o zonă liniștită și în plină dezvoltare, cu acces rapid către Șoseaua de Centură.

📍 Caracteristici principale:

Suprafață teren: 830 mp

Drum de acces 10 m lățime

Curent electric trifazic la proprietate

Restul utilităților în imediata apropiere

Teren împrejmuit cu gard metalic

Zonă curată, cu case și blocuri construite în apropiere

🏗 Avantaj major:
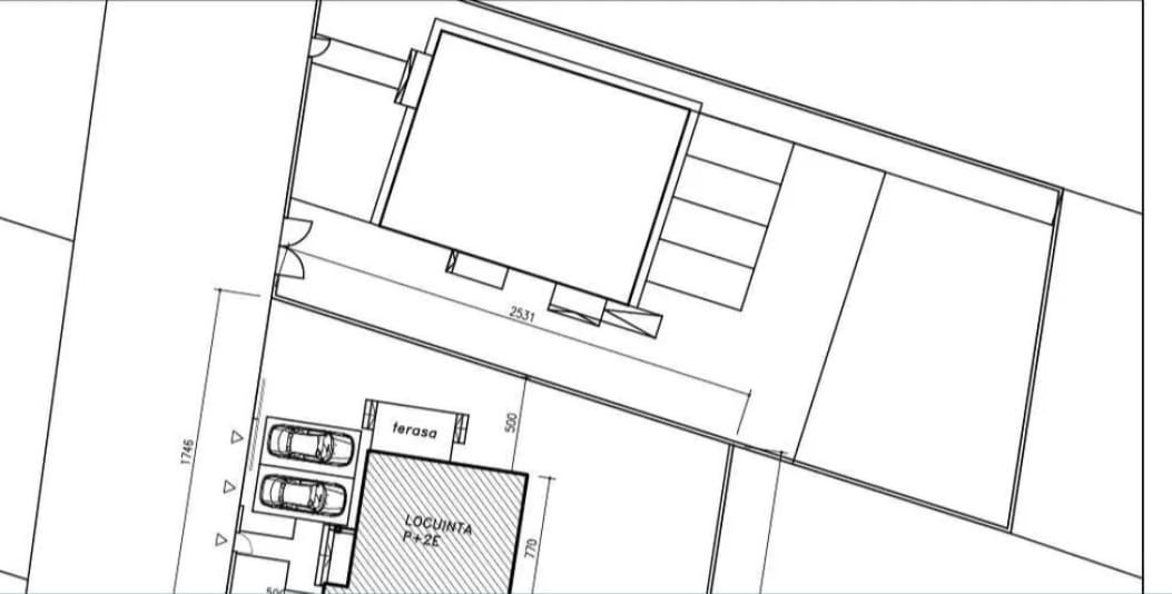
Pe teren există autorizație de construire în vigoare pentru hală metalică P+1E, cu destinația spații comerciale, depozitare și birouri, cu proiect de rezistență și toate avizele obținute.

✔ Suprafața utilă totală a halei: aprox. 290 mp
✔ Viitorul proprietar poate începe imediat lucrările sau poate opta pentru un alt tip de construcție (casă, duplex sau alt proiect).

📑 Situație juridică clară:
Toate actele sunt în regulă, terenul fiind curat din punct de vedere juridic, fără probleme sau complicații.
Comisionul perceput de Art Consul Imob este de 3% din valoarea tranzacționată.
Agent : Adela Lupu
Caracteristici
  • ID:P247833
  • S. teren:830.00 mp
  • Front stradal:18.22 m
  • Clasificare teren:Intravilan
  • Regim inaltime:P+1
Specificatii
Curent
Localizare
Adela Coman
Consultant Imobiliar
Esti interesat de aceasta proprietate ?